Cześć
Mam pytanie w kwestii możliwości przeniesienia rozdzielnicy w budynku jednorodzinnym. Czy technicznie jest to wykonalne:
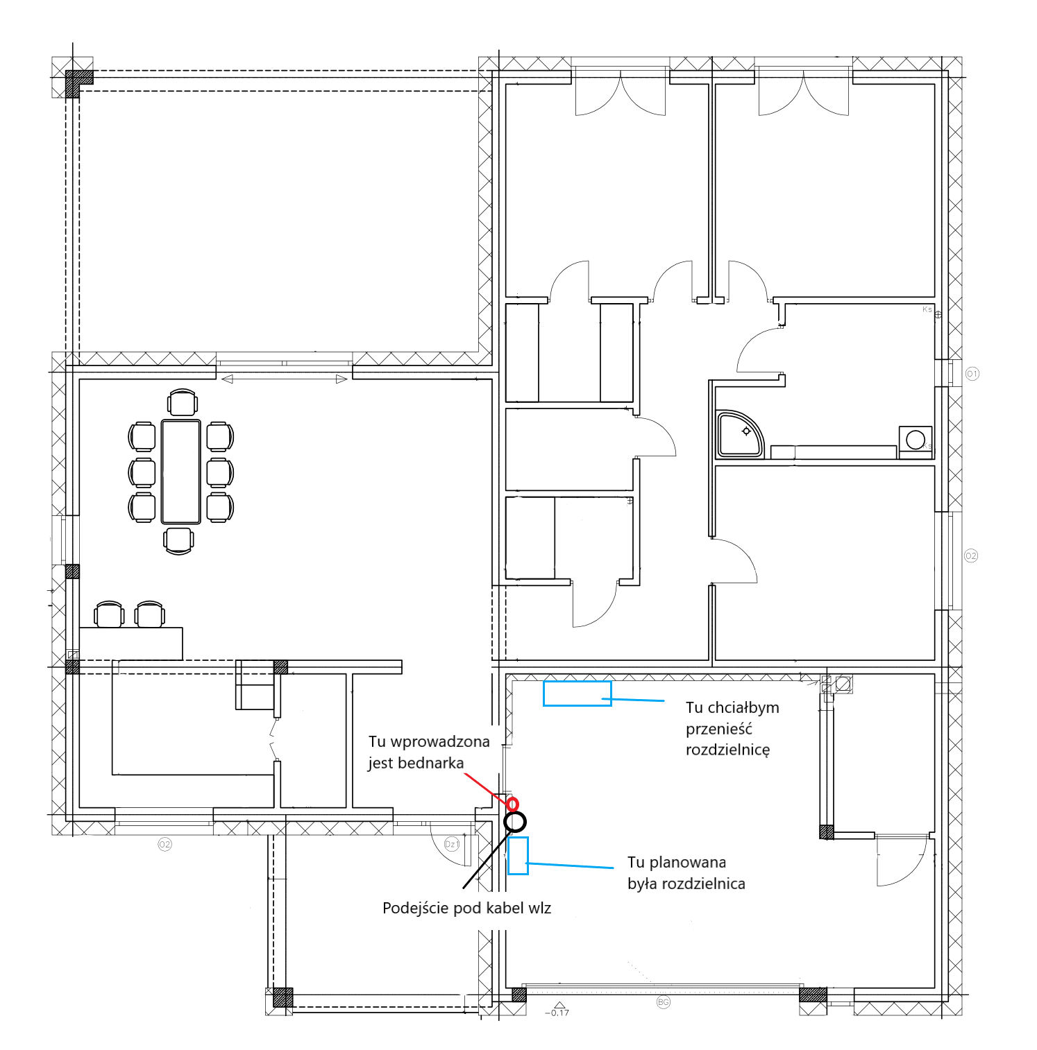
Murarze przygotowali mi przepusty pod kabel wlz (aroty 75mm) oraz wprowadzili bednarkę do budynku. ( jak na zdjęciu ) . Zanim zlecę pracę elektrykom chciałbym uzyskać Wasze wsparcie .
Chciałbym zmienić miejsce rozdzielnicy z uwagi na fakt że planuję automatykę i będzie sporo okablowania, dodatkowo troszkę koliduje to z mechanizmem bramy garażowej.
a. Czy można od tak sobie przedłużyć bednarkę i doprowadzić w nowe miejsce rozdzielnicy pod szynę gsw ? Czy może gsw pozostawić tu gdzie obecnie wychodzi bednarka i kablem pójść dalej.
b. Czy dam radę zgiąć tak kabel wlz 4x 15mm2 po wprowadzeniu do budynku żeby puścić go po podłodze w nowe miejsce rozdzielnicy ( do poziomu 0 w garażu brakuje około 27 cm ) Czy to karkołomny pomysł?
Jak to najlepiej ogarnąć.
pozdrawiam
Odpowiedzi (2)
- Sortuj według
- Ostatnio dodane
- Najwyżej ocenione
- Sortuj od najstarszych
-
-
Przeniesienie rozdzielnicy oraz przedłużenie bednarki jest możliwe. Przy układaniu kabla należy zwrócić uwagę na dopuszczalny promień gięcia konkretnego kabla. Dla YKY 4x16 jest to ok 12-15 x średnica kabla. Jeżeli nie da się uzyskać takiego promienia to można podkuć wkoło arota aby uzyskać łagodniejszy promień. Kabel w posadzce oczywiście w rurze osłonowej. Do łączenia bednarki można zastosować łączniki, np.:
Złącze krzyż. nierdzewne 4xM8 bednarka-bednarka 40 – Velkoobchod Vysočina | TIM SA
Złącze krzyżowe nierdzewne 4xM8 z przekładką bednarka-bednarka 30x4mm – HERMI | TIM SA
Połączenie bednarki można wykonać na ścianie i zastosować puszkę np.:
Puszka do złącza odgromowego 218x168x80mm INOX 35.02 – ELEKTRO-PLAST Opatówek | TIM SA
lub w posadzce i zastosować studzienkę np.:
Studzienka gruntowa kontrolno-pomiarowa mała R.8170 – PAWBOL | TIM SA
Wybór puszek i studzienek:
Obudowy złącz kontrolnych | TIM SA - Wysyłamy produkty w 24h
Czytaj także:
Przeniesienie licznika prosumenckiego
Po podziale i odsprzedaży działki, przyłącze, w którym znajduje się
Pytanie o przeniesienie licznika
Witam chciał bym się dowiedzieć jak to wygląda z przeniesieniem lic
Dobór rozdzielnicy i osprzętu
WitamProszę o pomoc w skonfigurowaniu rozdzielnicy xvtl o wymiarach
Poradnik Łukasza - Jak rozplanować rozdzielnicę?
Zapraszamy do obejrzenia nowego poradnika. W tym odcinku Łukasz por
Co powinna zawierać nowoczesna i bezpieczna rozdzielnica?
Rozdzielnica to istotny element każdej instalacji elektrycznej, odp
Schemat rozdzielnicy 3-fazowej – jak podłączyć?
Schemat rozdzielnicy trójfazowej to nie tylko rysunek – to fundamen

Nie będzie problemu z przeniesieniem rozdzielnicy.
Jeśli chcesz przedłużać bednarkę to do połączenia musi być dostęp.
Wygięcie kabla nie powinno być większym problem, zawsze możesz podkuć wylewkę żeby zmniejszyć kąt gięcia.
Do połączenia arota możesz użyć takich złączek: Złączka do rur dwuwarstwowej 75mm ZRD 75
Przymocować do posadzki arot możesz za pomocą takich taśm Taśma montażowa perforowana rolka 12x0,7mm