Odpowiedzi (4)
- Sortuj według
- Ostatnio dodane
- Najwyżej ocenione
- Sortuj od najstarszych
-
-
Projekt ciekawy, niemniej jeśli zależy Ci na łazience wygodnej i jednoczesnie praktycznej, to możę warto jest zastanowić się nad pomocą projektanta wnętrz? Takiej osobie można zlecić zaprojektowanie nie tylko całego mieszkania czy domu ale również i poszczególnych pomieszczeń. A jak wiadomo łazienka oraz kuchnia w domu bywają kluczowe...
https://marengo-architektura.com/oferta-projektanta/
Weź pod uwagę na przykład tego dekoratora wnętrz z Krakowa. -
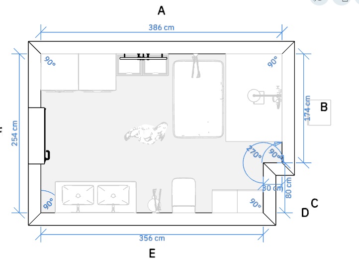
Odnośnie łazienki rozważyłbym umieszczenie w pionie pralki i na niej suszarki. Łazienka, czyli pomieszczenie z wanną lub prysznicem podlega specjalnym wymogą jeśli chodzi o instalację elektryczną w związku z tym przy rozmieszczaniu instalacji elektrycznej np.: gniazd, łączników, wentylatorów, oświetlenia itd. należy przestrzegać odpowiednich wymiarów co pokazuje poniższa grafika i co opisane jest tu: Instalacja elektryczna w łazience
Odnośnie lustra proponuję przemyśleć czy nie założyć pod nie "antypary" czyli w przypadku luster zawieszanych podkleja się pod nie folie grzewczą, a w przypadku luster wklejanych umieszcza się tam maty grzejne. Elementy te załączają się wraz z oświetleniem i poprzez podgrzewanie lustra powodują, że nie osadza się na nim para wodna.
https://www.tim.pl/wyszukiwanie/wyniki/?q=devi%20lustro&p=1
Pytanie czy w łazience chcecie zlikwidować efekt zimnej podłogi i zainstalować elektryczne ogrzewanie podłogowe (nie jako główne ogrzewanie tylko jako tryb comfort). Nawet jeśli w łazience jest wodne ogrzewanie podłogowe to w lecie ono nie działa i po wyjściu z wanny lub prysznica jest uczucie chłodu. Jeśli podłoga będzie delikatnie podgrzana odczuwalny komfort będzie lepszy :)
https://www.tim.pl/wyszukiwanie/wyniki/?p=1&q=mata%20grzejna&order=p3m&dir=desc&limit=24&filterdostepnosc_u_dostawcy=M&filtercategoryROOT=Kable%20i%20przewody&filterEF000041__zastosowanie=Ogrzewanie%20pod%C5%82ogowe%20akumulacyjne~~~Ogrzewanie%20pod%C5%82ogowe%20cienkowarstwowe~~~Dogrzewanie%20pod%C5%82ogowe&filtercategoryROOT%2FKable%20i%20przewody=Maty%20i%20Kable%20grzejne
Kolejna sprawa to grzejnik. Jeśli będzie to warto przewidzieć przy nim zasilanie go grzałki grzejnikowej która poza sezonem grzewczym pomaga chociażby w suszeniu ręczników.https://www.tim.pl/grzejnik-lazienkowy-drabinkowy-thermeco-avanta-500w
Wentylator - warto przemyśleć tą kwestię. Możliwości jest wiele ale najczęstsze to:
- uruchamiany czujnikiem wilgoci
- uruchamiany czujnikiem ruchu
- uruchamiany razem z oświetleniem, ale z podtrzymaniem które po wyłączeniu oświetlenia jeszcze przez jakiś czas podtrzymuje pracę wentylatoraWiem ;) dużo tego może ten materiał pomoże we właściwym wyborze? Jak dobrać wentylator?
Przykładowe wentylatory poniżej:
https://www.tim.pl/wyszukiwanie/wyniki/?q=wentylator%20%C5%82azienkowy&p=1
W łazience warto wykonać spad podłogi w jedną stronę i w najniższym miejscu umieścić czujnik zalania. Kilka przykładowych poniżej:
https://www.tim.pl/wyszukiwanie/wyniki/?q=czujnik%20zalania&p=1
Czujnik zalania w zależności od wybranego modelu po wykryciu wody może automatycznie wyłączyć dopływ wody do mieszkania (odciąć zawór główny), lub/i może wysłać do właściciela powiadomienie w aplikacji lub SMS o występującym zagrożeniu.
Oświetlenie - warto do łazienki wybrać oświetlenie o barwie zimnej (od razu wizualnie będzie jaśniej i czyściej - tak jakoś bielej). Oświetlenie lustra warto tak dobrać aby współczynnik oddawania barw był jak najbardziej zbliżony do 100 co gwarantuje dobre oddawanie barw - docenią to szczególnie kobiety ;)
Cóż więcej - można porozmawiać o elektronicznym sterowaniu temperaturą w łazience np. z smartfona, można założyć krany na fotokomórkę wówczas kran sam się uruchamia po podstawieniu rąk a jeśli są jeszcze większe oczekiwania można pomyśleć o nagłośnieniu do łazienki (głośniki odporne na wilgoć). Są również w sprzedaży rozwiązania typu podświetlenie strumienia wody lub radio pod prysznic i co ciekawe nie wymagają doprowadzenia zasilania ani baterii. Zasilane są z miniaturowej turbinki ;) montuje się je w obiegu wody i uruchomienie np. prysznica powoduje że radio zaczyna grać a strumień wody jest podświetlony np. na niebiesko gdy leci zimna woda i na czerwono gdy leci woda gorąca.
-
Na co zwróciłbym uwagę:
Kabine pociągnąć aż do komina (w tym rogu teraz bedzie sie tylko kurz zbierać), usunac gotowy brodzik, bo bedzie kosztowac fortune i zrobic spadek na kaflach do odplywu liniowego, a kase zaoszczedzona na brodziku wydac na dobrej jakosci kabine pod wymiar (Ravak, Radaway). Jak również wiszącą miskę wc https://lazienka-rea.com.pl/misa-wc-podwieszana-rea-raul.html Zwróć uwagę na misy wc firmy Rea.
grzejnik przesunac tam, gdzie reczniki i wstawic wysoka drabinke z zamontowanymi haczykami na reczniki
suszarka na pralke + dodatkowy blat roboczy z szafka na srodki czystosci
Czytaj także:
Wykończenie łazienki
Witam, czy do łazienki mogę dać zwykłą płytę gipsową, czy musi być
Wyposazenie łazienki
Mam takie małe pytanie odnośnie urządzania łazienki... Mianowicie c
Ogrzewanie w projekcie domu
Jaki rodzaj ogrzewania lepiej wpsiać w projekcie domu? Ogrzewa
Ogrzewanie łazienki: ogrzewanie podłogowe czy grzejniki ł
Łazienki to pomieszczenia, które wymagają szczególnego podejścia do
Strefy ochronne w łazience - bezpieczeństwo i wymagania i
Bezpieczeństwo elektryczne w łazience stanowi priorytetowe zagadnie
Ile lumenów na m²?
Ogólnie przyjmuje się, że liczba lumenów potrzebna na m² zależy od

Sam remont łazienki to dość droga inwestycja, dobrze jest jednak zastanowić się nad:
ograniczeniem ilośći płytek na rzecz farby ( obecnie są farby, które dobrze nadają się do pomieszczeń takich jak łazienka)
nad zrezygnowaniem z podwieszanego sufitu
Sporo rzeczy można zrobić samodzienie:
https://wykonczony.pl/tarcze-do-szlifowania-betonu/
Przy remoncie przydadzą się na pewno dobrej klasy tarcze do szlifowania.